Заказать услугу
10-15 дней
5-9 дней
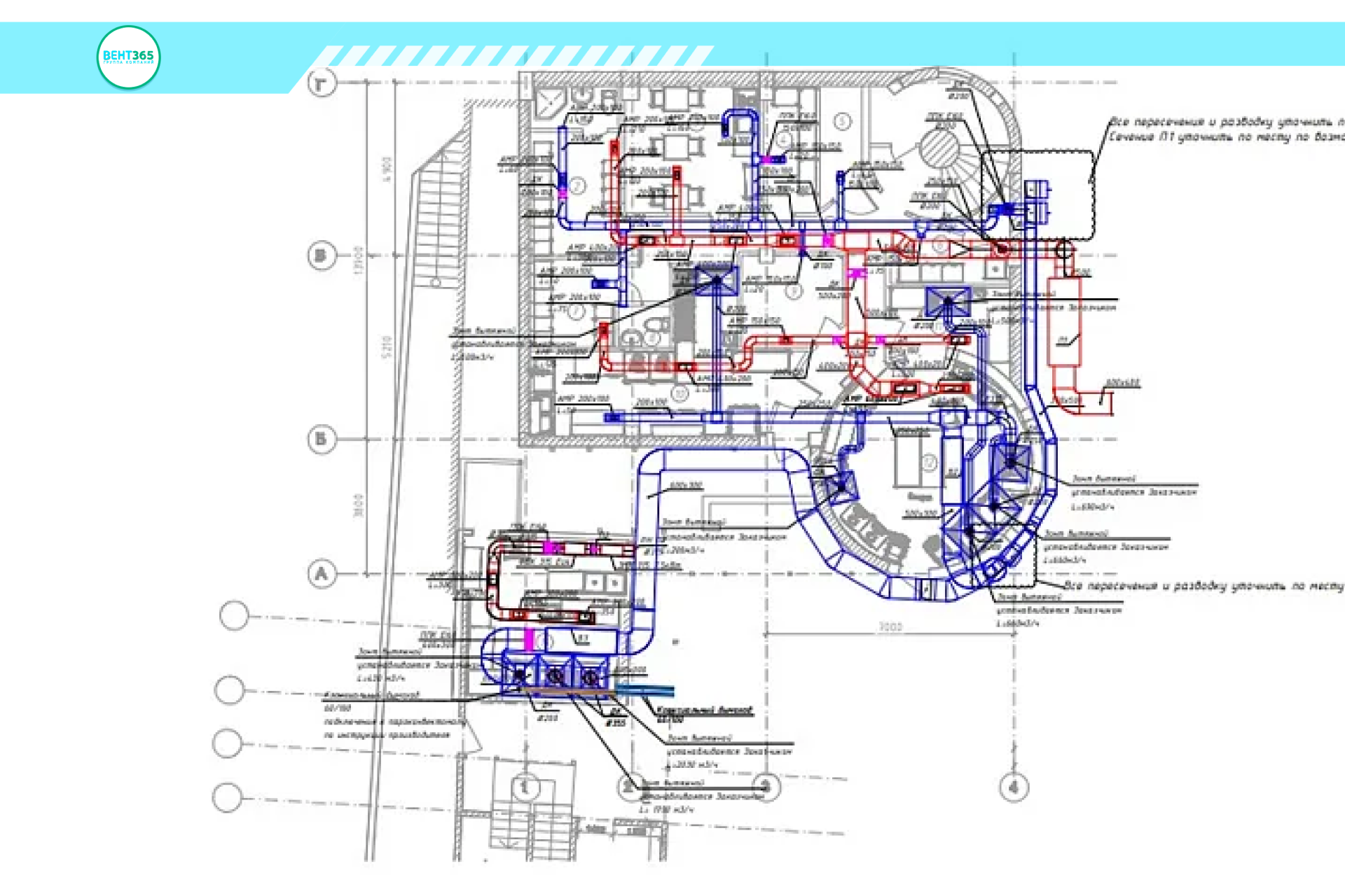
Проект ОВиК ресторана «ЯБЛОКИ ПЕЧЁМ»
Площадь: 152 м²
Назначение помещения: Ресторан
Задача:
Разработка систем вентиляции и кондиционирования для кухни ресторана требует тщательного внимания к мелочам и учета специфики объекта.
• Выполнен анализ конфигурации пространства для подбора наилучших мест установки вытяжных устройств.
• При подборе техники были учтены повышенные значения температуры и влажности, типичные для коммерческой эксплуатации.
• В схему внедрены многоступенчатые фильтры для удаления из воздуха жировых отложений и запахов.
• Создана автоматизированная система контроля температуры и уровня влажности. Разработана система кондиционирования воздуха с учетом норм энергоэффективности.
• В проекте предусмотрены меры по шумоподавлению.
Результат:
> Проектная документация подготовлена в установленные сроки и передана клиенту для дальнейшей реализации.
Срок выполнения: 30 рабочих дней
Площадь: 152 м²
Назначение помещения: Ресторан
Задача:
Разработка систем вентиляции и кондиционирования для кухни ресторана требует тщательного внимания к мелочам и учета специфики объекта.
• Выполнен анализ конфигурации пространства для подбора наилучших мест установки вытяжных устройств.
• При подборе техники были учтены повышенные значения температуры и влажности, типичные для коммерческой эксплуатации.
• В схему внедрены многоступенчатые фильтры для удаления из воздуха жировых отложений и запахов.
• Создана автоматизированная система контроля температуры и уровня влажности. Разработана система кондиционирования воздуха с учетом норм энергоэффективности.
• В проекте предусмотрены меры по шумоподавлению.
Результат:
> Проектная документация подготовлена в установленные сроки и передана клиенту для дальнейшей реализации.
Срок выполнения: 30 рабочих дней