Заказать услугу
10-15 дней
5-9 дней
Проектирование «ВЕРНЭО» ТЦ Мега-Адыгея
Площадь: 2571 м²
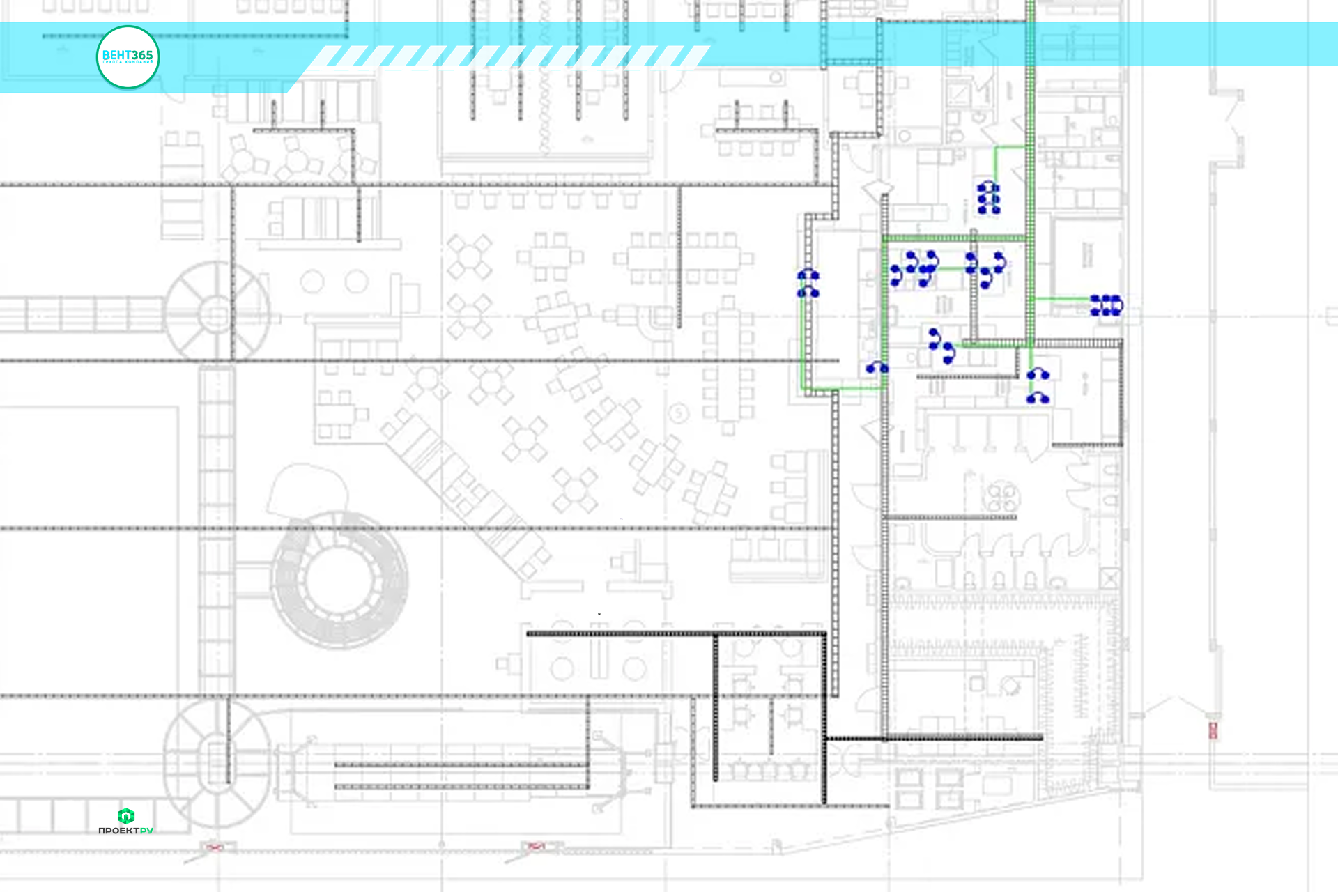
Назначение помещения: Игровая детская площадка
Задача:
Разработать комплекс проектной документации на детской игровой площадке “ВЕРНЭО”, включая разделы:
ОВиК - системы отопления, вентиляции и кондиционирования;
ВК - системы водоснабжения и канализации;
ЭОМ - системы электрооборудования и освещения.
Решение:
Создание игровой зоны для детей — это комплексная задача, цель которой — обустроить безопасные территории для досуга и подвижных игр подрастающего поколения.
1. Электромонтажные работы (ЭОМ)
• Тщательно рассчитана потребляемая мощность для надежности и безопасности электросетей.
• Подготовлены рациональные схемы электросетей, включающие установку распределительного щита, прокладку кабельных трасс, организацию розеточных групп, а также систем аварийного и эвакуационного освещения.
• Приоритет отдан современным защитным устройствам систем автоматизации.
2. Инженерные системы (ОВиК)
• Выполнены расчеты и проведены моделирования воздуховодов.
• Подобрано оптимальное оборудование и материалы для эффективной фильтрации воздуха и его грамотной циркуляции.
• Учтены совмещенности зоны кухни и игровых площадок.
• Соблюдены требований к микроклимату и обеспечения энергоэффективности.
3. Водоснабжение и канализация (ВК)
• Разработан проект системы водоотведения, водоснабжения и трассировки сточных вод.
• Созданы подробные схемы и чертежи, отражающие конфигурацию канализационных сетей и насосного оборудования, с учетом объемов потребления и отведения воды.
Результат:
> Все проекты в полной мере соответствуют установленным требованиям, стандартам, нормативам, пожеланиям клиента, а также действующему законодательству Российской Федерации.
Срок выполнения: 28 рабочих дней
Площадь: 2571 м²
Назначение помещения: Игровая детская площадка
Задача:
Разработать комплекс проектной документации на детской игровой площадке “ВЕРНЭО”, включая разделы:
ОВиК - системы отопления, вентиляции и кондиционирования;
ВК - системы водоснабжения и канализации;
ЭОМ - системы электрооборудования и освещения.
Решение:
Создание игровой зоны для детей — это комплексная задача, цель которой — обустроить безопасные территории для досуга и подвижных игр подрастающего поколения.
1. Электромонтажные работы (ЭОМ)
• Тщательно рассчитана потребляемая мощность для надежности и безопасности электросетей.
• Подготовлены рациональные схемы электросетей, включающие установку распределительного щита, прокладку кабельных трасс, организацию розеточных групп, а также систем аварийного и эвакуационного освещения.
• Приоритет отдан современным защитным устройствам систем автоматизации.
2. Инженерные системы (ОВиК)
• Выполнены расчеты и проведены моделирования воздуховодов.
• Подобрано оптимальное оборудование и материалы для эффективной фильтрации воздуха и его грамотной циркуляции.
• Учтены совмещенности зоны кухни и игровых площадок.
• Соблюдены требований к микроклимату и обеспечения энергоэффективности.
3. Водоснабжение и канализация (ВК)
• Разработан проект системы водоотведения, водоснабжения и трассировки сточных вод.
• Созданы подробные схемы и чертежи, отражающие конфигурацию канализационных сетей и насосного оборудования, с учетом объемов потребления и отведения воды.
Результат:
> Все проекты в полной мере соответствуют установленным требованиям, стандартам, нормативам, пожеланиям клиента, а также действующему законодательству Российской Федерации.
Срок выполнения: 28 рабочих дней